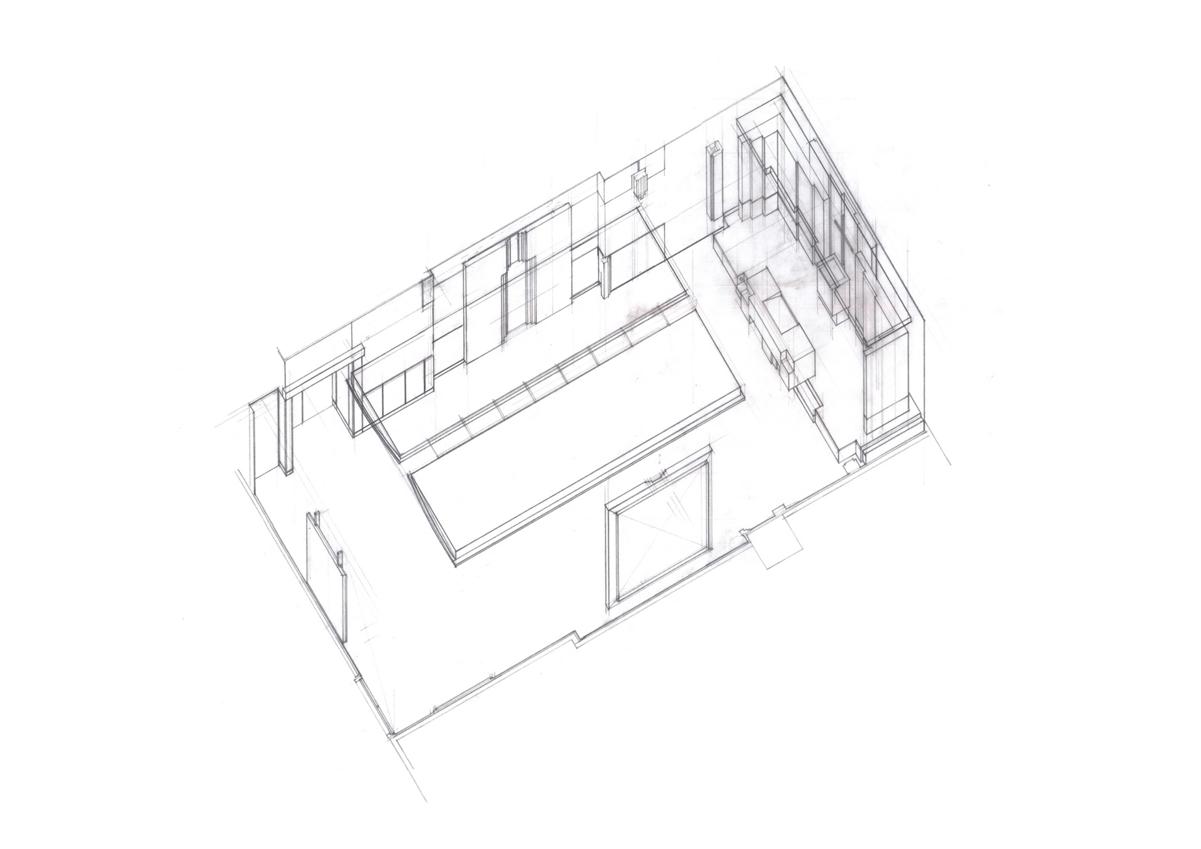
1995
U-PORT CHAPEL
五反田