WORKS
1994
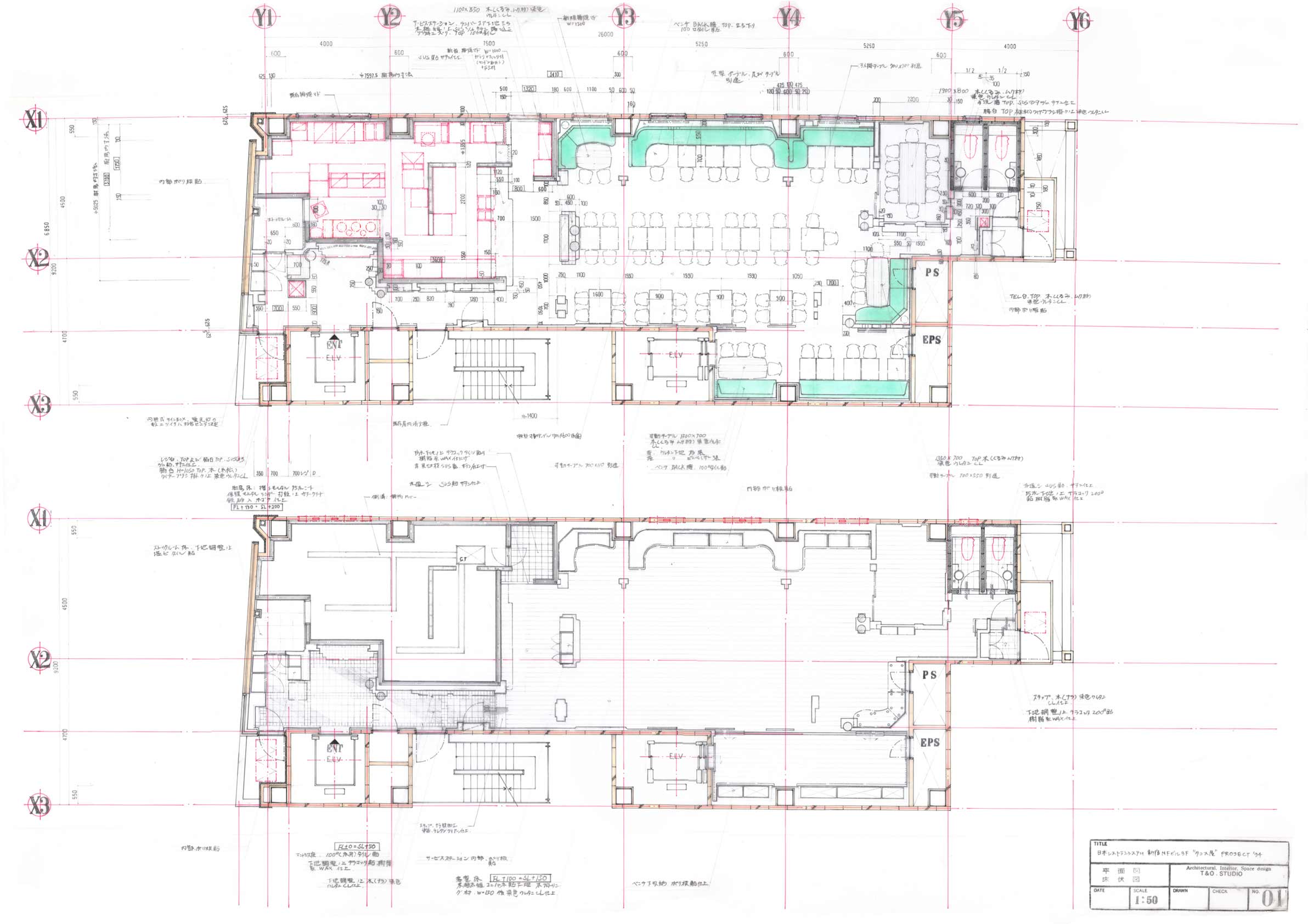
TACOS-YA
新宿NSビル店