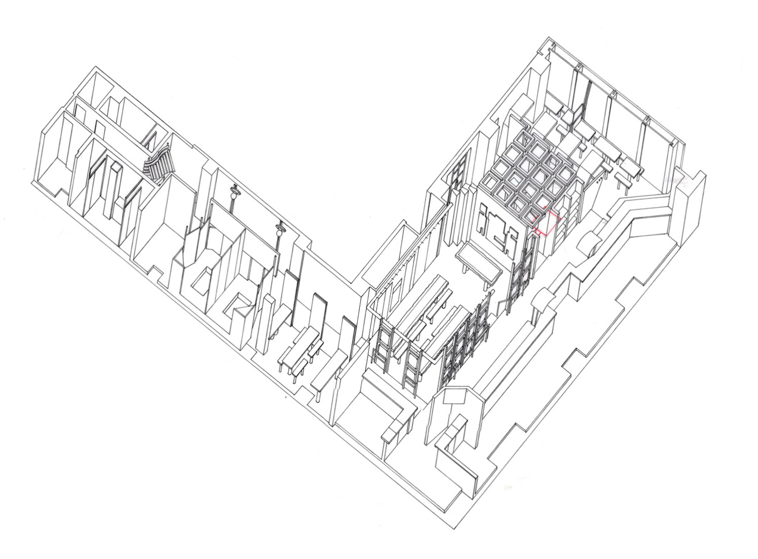
1991
Yu
新宿 セノビル店